Photo 1
1 / 4
KupitiStan

Prodajem Stan-Apartman 31m2, Zabjelo

Podgorica, Montenegro
69,600
51 pregleda
4/1/2026

Opis

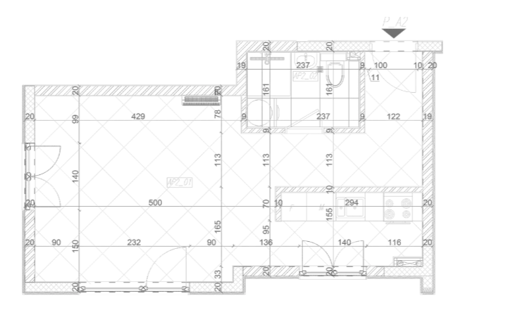
Prodaje se stambeno poslovni apartman u izgradnji 31m2 koja se nalazi u blizini pješačkog mosta na Zabjelu. Stan je pozicioniran u sklopu manjeg i luksuznog stambenog objekta i nalazi se na prizemlju. Sastoji se od dnevne zone koja posjedje dnevni boravak i predviđenu kuhinju i toaleta. Prostor je u stanu odlično iskorišćen sa dosta svjetlosti.Idealna prilika za život ili investiciju po cijeni koje nema na tržištu i to na jednom od najtraženijih djelova grada. Lokacija je fenomenalna za život jer se na samo pet minuta hoda nalazi tržni centar Big Fashion, City Kvart i Central point, a na 10 minuta automobilom je i strogi centar grada. Kvalitet gradnje je izuzetan i odaje utisak sigurnosti i dugotrajnosti. Rok za završetak radova je septembar 2026. godine.

Parametri

31 м²
Površina (m²)
1
Kupatila

📍 Lokacija na mapi

Podgorica, Montenegro

Loading map...

Nazad

Estate Agent

Pojedinac

🔗 Otvori izvor