Photo 1
1 / 10
BuyApartment

One and two bedroom apartments in the new complex, Đuraševići

Tivat, Montenegro
181,200
85 views
2/22/2026

Description

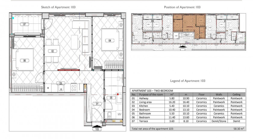
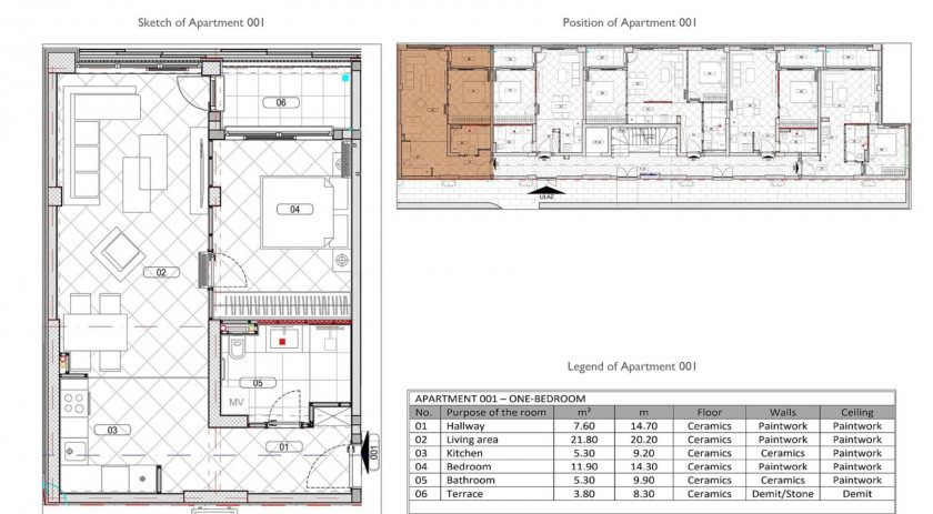
Apartments for sale in a new complex with its own private beach and pier! One or two bedroom apartments in a new complex in the village of Djurashevici (Tivat). The square footage starts from 45.50 m2, the price starts from 4000 euros/m2. All apartments have sea views. The structure of the one-bedroom apartment includes an entrance hall, a living room, a kitchen, a dining room, a bedroom, a bathroom and a terrace. The work is expected to be completed at the end of 2026. It is possible to purchase a garage space at a price of 20,000 euros. The building will have its own pier and beach.

Parameters

45 м²
Area (m²)
1
Bedrooms
1
Bathrooms
1
Parking Spots

Features

Parking
Air Conditioning
New Construction

📍 Location on Map

Tivat, Montenegro

Loading map...

Back

Estate Agent

Individual

🔗 Open Source