Photo 1
1 / 6
BuyApartment

Prodajem Stan-Apartman, Centar

Budva, Montenegro
600,000
66 views
2/10/2026

Description

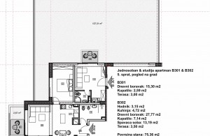
Jednosoban stan i studija B301 i B302, na 5. spratu, površine 59.47 m2 i 20,89 m2 + 130,99 m2 terasa (ukupno: 211.26 m2). Stan se sastoji od jednosobnog i studio apartmana. Jednosoban stana sastoji se iz prostranog dnevnog boravka sa kuhinjom, kupatilo, jednom spavaćom sobom i privatnom terasom (7,13 m2) koja ima izlaz iz dnevne sobe. Studia stana sastoji se iz dnevnog boravka i kupatila. Oba stana imaju izlaz na veliku terasu (127,31 m2) sa pogledom na Budvu. U odnosu koliko novca investirate u startu po potpisivanju ugovora, ostvarujete mogućnost većeg popusta i niže cijene! Cena stana: 70% plaćanje u roku 30 dana od potpisanog ugovora i 30% na mjesečne rate, cjena je – 600.000 € 90% plaćanje u roku 30 dana od potpisanog ugovora i 10% na mjesečne rate, cjena je – 590.000 € *** Ocekivani prihod od rentiranja na dnevnom nivou za stanovi B301 i B302 – 45.000 Eura godisnje ( minimum 100 nocenja )

Parameters

211 м²
Area (m²)
2
Rooms
2
Bedrooms
2
Bathrooms

Features

Air Conditioning

📍 Location on Map

Budva, Montenegro

Loading map...

Back

Estate Agent

Individual

🔗 Open Source